DEPARTMENT FOR EDUCATION

New Model Designs for Schools

 

Project Insight

Cullinan Studio led a consultant design team in the delivery of the New Model Designs for School in collaboration with the Department for Education (DfE). These standard school design solutions demonstrate the Department’s approach to customisable standardisation to lead to efficiencies of space, programme time for design, and adaptability for future use. The New Model Designs (NMD) are three typical school exemplars of the application of the NMD Pattern Books which shall be adaptable to meet any given school typology and provision requirements, including responding to site specific landscape considerations.

The designs put health and wellbeing at the forefront of school design enabling young people to have the opportunity they deserve: to live well and learn well; this will include, better air quality indoors and out with natural ventilation solutions, increased circulation to let the school and children breathe with relaxed internal and external dining, and an increased access to nature and priority for social and socialising spaces for pupils and staff.

 

New Model Design Primary School - KS2 classroom

New Model Design Primary School - Nursery

New Model Design Primary School - Masterplan

New Model Design Secondary School

New Model Design Secondary School - Specialist Science Lab

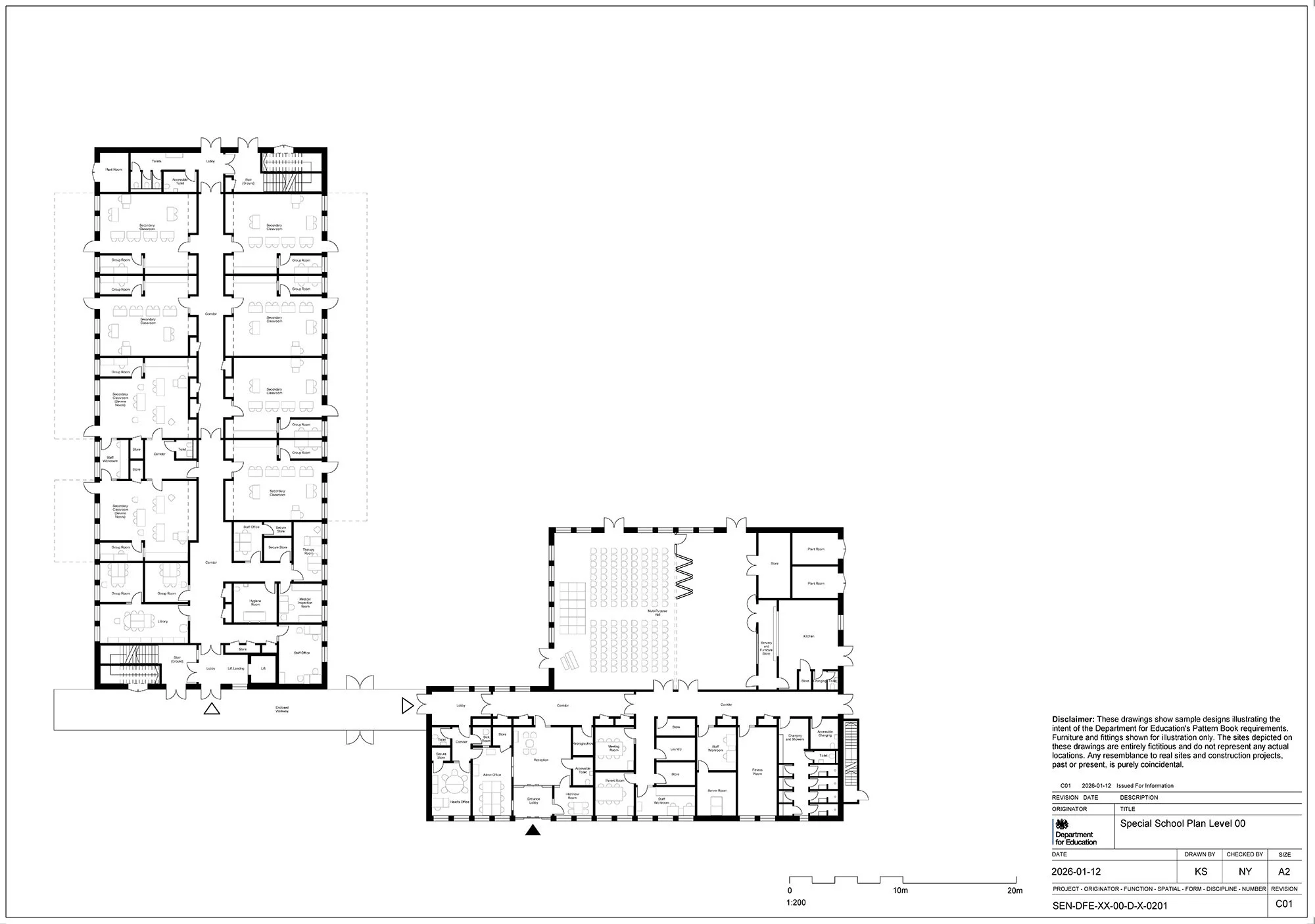
New Model Design Special School - Ground Floor Plan

New Model Design Special School